منزل حديث فاخر مسبق الصنع مكون من ثلاثة أحجام أفقية: ريفرهوس نياغارا
مشرف
www.chinaheya.com
2017-08-02 09:25:56
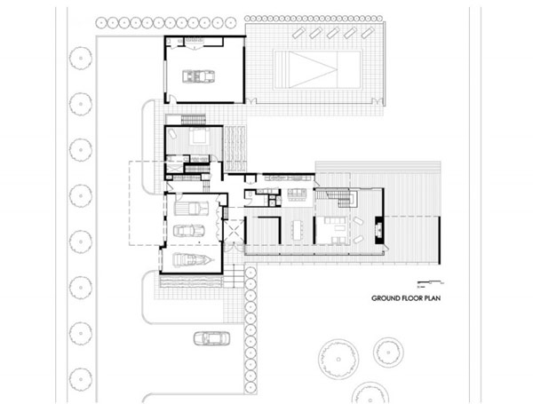
ريفرهوس نياجرا هو مشروع الهندسة المعمارية الحديثة التي وضعتها زرافة ستوديو وتقع في أونتاريو، كندا. السكن من طابقين لديه سطح إجمالي 5000 قدم مربع وإطلالات على النهر دون عائق عبر العرض الكامل للعقار. هنا أكثر من المهندسين المعماريين: "ويتكون المنزل من ثلاثة مجلدات أفقية متميزة. يتم تعريف حشد المبنى الشمالي الجنوبي من قبل اثنين من قذائف مستطيلة مضاف التي يتم وضع الزجاج والأرز والجرانيت يرتدون وحدات التخزين لمساحات المعيشة الداخلية وسلسلة من الفراغات تخلق المدرجات الخارجية مغطاة. ترتدي القذائف في لوحة معدنية فضية وهي في الغالب مبهمة لتوفير الخصوصية من الخصائص المجاورة إلى الشمال والجنوب. نهايات الشرق والغرب المفتوحة للقذائف تكشف عن مناظر النهر والحديقة ". ندعوكم للقيام بجولة افتراضية في هذا المنزل المفرط وتقول لنا إذا كان هناك أي تفاصيل تعتقد أنها تستحق التأكيد على.


